Fall Protection Strategies For Garland Standing Seam Roofs
Posted by Howie Scarboro - CEO Fall Protection Distributors, LLC on Apr 21st 2026
See the Roof Anchor Compatibility Chart for Garland Company Standing Seam Panels.
Who Is The Garland Company?
The Garland Company has influenced commercial roofing for more than 125 years. Founded in 1895 in Cleveland, Ohio, Garland began as a manufacturer of durable roofing materials for industrial buildings, when long service life mattered more than appearance.
In 1992, Garland expanded into standing seam metal roofing with the introduction of R-Mer Lite®. That move opened the door to additional systems such as R-Mer Span, R-Mer Loc, and R-Mer Shield, each developed to address specific architectural and structural demands. Over time, Garland has built a global footprint and a comprehensive portfolio that now includes metal roofing, waterproofing, vegetative roofing, and complete building-envelope solutions. Garland standing seam roof systems reflect decades of refinement, testing, and real-world installation feedback. That same level of precision is exactly why compatible fall protection matters on these roofs.
Compatible Fall Protection for Garland Standing Seam Roofs
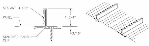
Garland standing-seam roof panels rely on floating panels and concealed attachment methods to achieve weather resistance and long-term performance. Drilling into the panels can introduce hidden leaks, restrict thermal expansion, and introduce structural compromises. Non-penetrating fall protection systems address these risks by securing to the seam without violating the panel integrity. For steel 22-gauge and 24-gauge standing seam profiles, the following products provide a complete safety solution:
- SSRA1 Standing Seam Roof Anchor: The foundational component. A universal non-penetrating anchor providing a 5,000-pound certified tie-off point by gripping the seam without drilling.
- SSRA2 Adjustable Roof Jack Adapters: Brackets that mount to SSRA1 anchors to support 10-foot walkboards, providing a level working surface on sloped metal.
- SSRA3 Anchor Plates: Heavy-duty spanner plates that connect two SSRA1 anchors into a single assembly for horizontal lifeline endpoints.
- 100-foot SSRA HLL Kit: A temporary mobility solution including four anchors and a 100-foot kernmantle rope rated for two workers.
- Super Anchor 120-foot Permanent HLL: A long-term maintenance solution with non-penetrating riser posts and galvanized steel cable.
- Ridge Pro Steep Assist: The essential first-man-up tool for pitches between 6:12 and 12:12, providing immediate tie-off before leaving the ladder.
Keep in mind that OSHA and ANSI standards limit horizontal lifeline systems to a maximum pitch of 4:12. OSHA recognizes that workers can lose their footing and slide on steeper roofs, leading to dangerous swing falls that are not suitable for horizontal lifeline setups.
Proper Attachment: Set-Screws and Torque Requirements
Installers must match the fastener and torque setting to the specific Garland panel gauge to ensure certified holding power:
- Cupped-Tip Stainless Steel Set Screws: Use these screws exclusively on 22-gauge steel panels. Torque these screws to 90 inch-pounds.
- Nylon-Tipped Set Screws: For use with 22-gauge or 24-gauge steel panels. Torque these fasteners to 180-200 inch-pounds to preserve high-end architectural finishes.
- Maintenance: Treat nylon tips as consumables. Replace these tips every 3 to 5 uses to maintain maximum grip strength.
CRITICAL WARNING: NO IMPACT GUNS
Warning: Always use a calibrated torque wrench for final installation. Never use an impact gun to install set-screws. Impact guns can quickly over-tighten the screws, resulting in permanent damage to the standing-seam rib or the anchor itself. This error compromises the anchor's certified holding power and voids the hardware warranty.
Garland R-Mer Span T-Panels (SSRA Compatible 22/24 ga. Steel)

Garland's R-Mer Span T-Panel is a structural standing seam system designed for projects where strength and weather performance matter. The panel uses a 2-3/8-inch vertical seam with formed mesas across the flat. This detail reduces visual distortion and helps control oil canning on long roof runs. R-Mer Span panels can be installed on slopes as low as 1/4:12, making them a strong option for retrofit projects and low-slope new construction. Panel widths of 12, 16, or 18 inches pair with a continuous 16-gauge clip system that allows unrestricted thermal movement. Garland manufactures this system in 22- and 24-gauge steel. Warranty options range from 20 to 30 years. See the Roof Anchor Compatibility Chart for Garland Company R-Mer Span T-Panel Standing Seam Panels.
Fall Protection for Garland R-Mer Span
- The SSRA1 Seam Anchor mounts directly to the 2-3/8" vertical T-seam, providing a certified 5,000-lb tie-off while allowing the required thermal expansion.
- SSRA2 Adjustable Roof Jacks can be mounted to SSRA1 anchors to provide level platforms for material staging and stable footing on sloped sections.
- SSRA3 Anchor Plates connect two anchors, serving as robust endpoints for lifeline systems across multiple R-Mer Span runs.
- The 100-foot SSRA HLL Kit is the primary solution for wide-area temporary protection, while the 120-foot Super Anchor Permanent HLL provides long-term maintenance access using non-penetrating riser posts.
- The Ridge Pro Steep Assist is the required first-man-up solution for any pitch between 6:12 and 12:12, ensuring safety before leaving the ladder.
- CRITICAL WARNING: Curving is available for the R-Mer Span profile. Curved, convex, or tapered installations pose unique fall protection hazards. A qualified safety professional must conduct a specialized on-site audit before deploying any anchoring hardware on curved panels.
Garland R-Mer Loc Snaplock Panels (SSRA Compatible 22/24 ga. Steel)

A snaplock standing seam system engineered for watertight performance on architectural and retrofit roof designs. The snaplock seam design pairs a 1-3/4-inch vertical rib with a heavy 18-gauge, one-piece clip that spans efficiently over open framing or solid substrates. This configuration makes R-Mer Loc a popular choice for mansards, parapets, and reroofing applications. An internal gutter and anti-siphon feature built into the seam helps manage wind-driven rain, reducing the risk of water intrusion. Garland manufactures R-Mer Loc panels in 22- and 24-gauge galvanized steel. Panel widths of 12, 16, and 18 inches support a range of layouts. See the Roof Anchor Compatibility Chart for Garland Company R-Mer Loc Snaplock Standing Seam Panels.
Fall Protection for Garland R-Mer Loc
- The SSRA1 Seam Anchor grips the 1-3/4" vertical seam securely. Balanced compressive force protects the snaplock mechanism from disengagement or side-load damage.
- SSRA2 Adjustable Roof Jacks provide level walking surfaces, while SSRA3 Anchor Plates facilitate multi-worker lateral mobility.
- The 100-foot SSRA HLL Kit allows two workers to cover larger roof sections while remaining 100% tied off. For permanent facility needs, the 120-foot Super Anchor system is the ideal non-penetrating choice.
- The Ridge Pro Steep Assist provides 5,000-lb certified protection at the roof peak for slopes ranging from 6:12 to 12:12.
- On 24-gauge R-Mer Loc steel, use nylon-tipped set-screws ONLY (torqued to 180-200 inch-pounds) to maintain holding strength without crushing the lighter rib.
Garland R-Mer Shield Panels (SSRA Compatible with Test Fit)

Garland's R-Mer Shield panels focus on structural strength where wind resistance matters most. This system uses a 2-1/16-inch vertical seam paired with an extruded aluminum clip-and-top-rail assembly, allowing unrestricted thermal movement without stressing the panel. R-Mer Shield installs over open purlins on slopes as low as 1/4:12, making it well-suited for both retrofit projects and new construction. Panel widths of 12.75, 16.75, and 18.75 inches are available to meet architectural specifications. Panel material options range from 20-, 22-, and 24-gauge G-90 galvanized steel. See the Roof Anchor Compatibility Chart for Garland Company R-Mer Shield Snaplock Standing Seam Panels.
Fall Protection for Garland R-Mer Shield
- Because the R-Mer Shield seam incorporates a distinct top-rail box profile, standard SSRA1 anchors must be physically test-fitted to the seam on a non-critical area before system-wide deployment.
- If a proper fit is confirmed, SSRA2 Roof Jacks and SSRA3 Anchor Plates can be utilized to build out level platforms and lifeline endpoints.
- The 100-foot SSRA HLL Kit and 120-foot Super Anchor Permanent HLL are compatible if the foundational SSRA1 fits the top-rail profile.
- The Ridge Pro Steep Assist remains the primary solution for peak-mounted safety on steeper pitches up to 12:12.
- Follow the gauge-based torque requirements: 90 in-lbs for cupped-tip screws on 22 ga. steel, or 180-200 in-lbs for nylon-tipped screws on both 22 and 24 ga. steel.
Technical Reliability: ISO 17025 Material Testing
Review our full technical results by visiting our SSRA independent laboratory test reports. Our systems are engineered to exceed industry standards, ensuring that your crew is protected by the most robust non-penetrating hardware on the market.
Standing Seam Metal Roof Anchor 22-24 Gauge Panel Compatibility For Garland Company
| R-Mer Span T-Panel (22 Ga.) | R-Mer Span T-Panel (24 Ga.) | R-Mer Loc (22 Ga.) | R-Mer Loc (24 Ga.) | R-Mer Shield (22 Ga.) | R-Mer Shield (24 Ga.) | |
|---|---|---|---|---|---|---|
SSRA 1![]() |
YES | NO | YES | NO | Test Fit | NO |
SSRA1 Nylon Tip![]() |
YES | YES | YES | YES | Test Fit | Test Fit |
SSRA2 Roof Jack![]() |
YES | YES | YES | YES | Test Fit | Test Fit |
SSRA3 Anchor Plate![]() |
YES | YES | YES | YES | Test Fit | Test Fit |
The Ridge Pro![]() |
YES | YES | YES | YES | YES | YES |
Certified Protection: 125 Years of Engineering vs. High-Risk Imports
A Garland roof system represents over a century of Cleveland-based engineering and industrial refinement. To protect this investment, contractors must utilize safety hardware that matches that same structural pedigree. The market is currently flooded with low-cost, unbranded "generic" seam anchors that lack traceable testing data or verifiable material certifications. These generic alternatives represent a substantial liability, as they cannot provide the structural certainty required on high-profile architectural standing-seam panels.
The American-made SSRA1 Standing Seam Roof Anchor provides a documented contrast. Precision-machined from solid 6061-T6 aluminum and validated at independent laboratories, our hardware is designed for transparency. While OSHA mandates a 5,000-pound capacity, the SSRA1 has proven its reliability under ultimate loads exceeding 14,500 pounds without failure. Choosing domestic, certified hardware ensures the building's thermal expansion design remains functional while keeping the work crew protected from accidents. Review our full laboratory results in our SSRA independent laboratory test reports.
Contact Us for Expert Standing Seam Fall Protection Advice
For expert guidance on standing-seam roof anchors, lifeline kits, and fall-protection systems that protect both your crew and your panels, contact us today at 863-703-4522 or visit www.StandingSeamRoofAnchor.com. Our safety specialists can help you match the right non-penetrating anchor to your specific roof profile and slope. Let's make your next Garland metal roofing project safe, compliant, and built to last. For continued learning, download OSHA's 48-page Fall Protection Manual and our free Anchor Inspection Form once you've selected the ideal anchors for your roof system. Together, we'll help you stay ahead of OSHA standards while preserving your roof's weather-tight seal.
10 Essential Safety Tips for Garland Standing Seam Projects
Staying safe on a Garland roof requires more than just the proper anchors; it requires a total commitment to safety culture. Here are ten essential strategies to keep your team protected while preserving the integrity of these high-performance systems.
1. Reject Unverified Imports to Reduce Liability
Only use 3rd-party-tested SSRA1 anchors to meet the OSHA 1926.502 requirements for a 5,000-lb certified tie-off. Unbranded imports represent a significant liability on complex industrial envelopes.
2. Respect Thermal Expansion & The "Floating" Design
Always use non-penetrating clamps that grip the seam without piercing the metal. This design allows panels to float naturally, preventing oil-canning and maintaining the roof's watertight integrity.
3. Manage the "Pendulum Effect" & Dynamic Sag
Always calculate for cable deflection and potential swing falls. Ensure the work zone stays within a 30° arc of the anchor to prevent workers from swinging into lower structures or striking building levels.
4. Protect Panel Finishes with Material-Specific Fasteners
To prevent galvanic corrosion, match your hardware to the roof material. Use Stainless Steel set screws with steel panels to avoid corrosion and maintain the architectural finish.
5. Daily Torque Calibration
Safety is only as good as the last anchor inspection. Use a torque wrench to verify that all set screws remain at their required settings, ensuring the system is ready for a 5,000-lb impact.
6. Prevent Suspension Trauma with Trauma Straps
OSHA requires a prompt rescue, but suspension trauma can set in within minutes. Equip every harness with trauma straps to allow a fallen worker to stand up and relieve pressure on the femoral arteries.
7. Prioritize Low-Torque Seam Attachment
The SSRA1 meets safety standards with only 90 inch-pounds of torque on 22-gauge steel. Low-torque set screws prevent "crushing" or deforming the seam, preserving structural strength.
8. Mandate "First-Man-Up" Protection
The transition from the ladder to the peak is high-risk. For pitches between 6:12 and 12:12, mandate the use of The Ridge Pro to ensure workers are 100% tied off from the start of the shift.
9. Eliminate the Search for Hidden Clips
Traditional anchors often require mounting over hidden clips. SSRA1 anchors lock directly to the standing seam rib, providing a certified anchor point without the dangerous guesswork.
10. Consult Specialists for Curved Metal Panels
Curved standing seam systems present unique challenges. Standard anchoring methods may not account for swing-fall hazards on curved profiles; always conduct an on-site evaluation.
Disclaimer: The views, recommendations, and information presented in this blog are solely those of the author and do not necessarily reflect the opinions or positions of the featured panel manufacturer, its brands, subsidiaries, or parent companies. Customers are strongly encouraged to contact the roof panel manufacturer directly for inquiries regarding fall protection compatibility with their products and to address any potential warranty issues that may arise after installing our products.




